Eckdaten
- Art Etagenwohnung
- Lage 90518 Altdorf bei Nürnberg
- Miete zzgl. NK 635,00 €
- Nebenkosten 300,00 €
- Wohnfläche ca. 66 m²
- Zimmer 3
- Baujahr 1989
- Heizungsart Etagenheizung
- Stellplatzanzahl 1
- Bodenbelag Laminat Fliesen
- Ausstattung des Bades Badewanne Fenster
- Zustand Gepflegt
- Immobilien-ID 6274
Immobilie
Gemütliche 3-Zimmer-Wohnung in Altdorf!
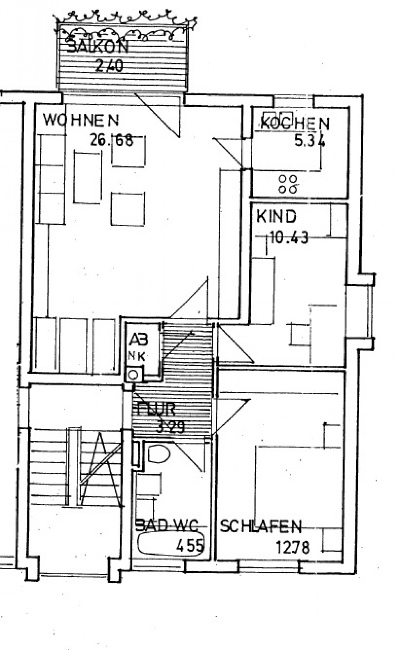
Die zur Vermietung angebotene Wohnung befindet sich im ersten Obergeschoss eines gepflegten Mehrfamilienhauses und verfügt über eine Wohnfläche von ca. 66 m², die sich auf drei Zimmer, Küche und Bad verteilen.
Die Raumaufteilung entspricht einem zeitgemäßen Grundriss, der eine funktionale Nutzung der einzelnen Wohnbereiche ermöglicht: der Wohnbereich mit Balkonzugang bildet hier das Herzstück der Wohnung. Zwei weitere Zimmer können beliebig als Schlafzimmer, Kinder- oder Gästezimmer oder Büro genutzt werden. Die Zimmer sind hell und freundlich gestaltet, sodass eine angenehme Wohnatmosphäre entsteht.
Das Badezimmer ist mit Wanne sowie Fenster ausgestattet, was eine optimale Belüftung ermöglicht.
Ein Kelleranteil bietet Staufläche und rundet das Bild der Wohnung ab.
Lage
Die Lage der Wohnung ist im Wohngebiet der Stadt Altdorf bei Nürnberg, einer Gemeinde im Landkreis Nürnberger Land in Mittelfranken, etwa 25 Kilometer östlich von Nürnberg. Altdorf bei Nürnberg weist eine gewachsene städtische Struktur auf und umfasst diverse Wohn-, Dienstleistungs- und Versorgungsangebote. Die Stadt verfügt über grundlegende Infrastruktur-Elemente wie Einzelhandelsgeschäfte, Lebensmitteldiscounter, Apotheken, medizinische Einrichtungen, Kindergärten sowie Schulen in erreichbarer Nähe (örtliche Infrastrukturangebote, allgemein verfügbar). Örtliche Sport- und Freizeitangebote, wie zum Beispiel ein kommunales Freibad, sind ebenfalls vorhanden und tragen zur grundsätzlichen Versorgungsstruktur bei.
Die verkehrliche Anbindung von Altdorf bei Nürnberg ist über mehrere Verkehrswege gegeben. Der Ort ist über regionale Straßen sowie die nahegelegene Autobahn A3 und A6 an das übergeordnete Straßennetz angeschlossen, wodurch Ziele in der Region und darüber hinaus erreichbar sind. Der öffentliche Personennahverkehr wird durch Buslinien und die S-Bahn-Verbindung (S2) zum Nürnberger Hauptbahnhof ergänzt, die eine regelmäßige Verbindung Richtung Nürnberg gewährleistet (Bahnanbindung als Endhaltepunkt der S-Bahn-Linie) und dort Anschluss an ein breites Schienen- und ÖPNV-Netz bietet. Die Fahrtzeit nach Nürnberg beträgt mit der S-Bahn in der Regel etwa 30 Minuten.
Insgesamt bietet die Lage eine Verbindung aus wohnbaulicher Integration in eine Gemeinde mit vollständiger Grundversorgung sowie einer verkehrlichen Anbindung sowohl im regionalen Nahverkehr als auch zum umliegenden Verkehrsnetz.
Ausstattung
Energieausweisangaben
- Enerigeausweistype Verbrauchsausweis
- Energiekennwert 149 KWh(m²*a)
- Energieeffizienzklasse E
- Energieausweis erstellt am 11.10.2018
- Energieausweis gültig bis 10.10.2028
- Heizungsart Etagenheizung
- Befeuerung / Energieträger Erdgas leicht
Weitere Informationen
Herzlichen Dank für Ihre Anfrage.
Wir werden diese so schnell wie möglich bearbeiten.










